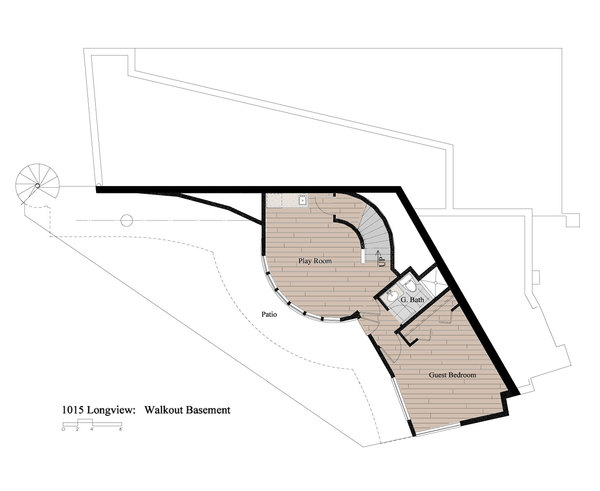
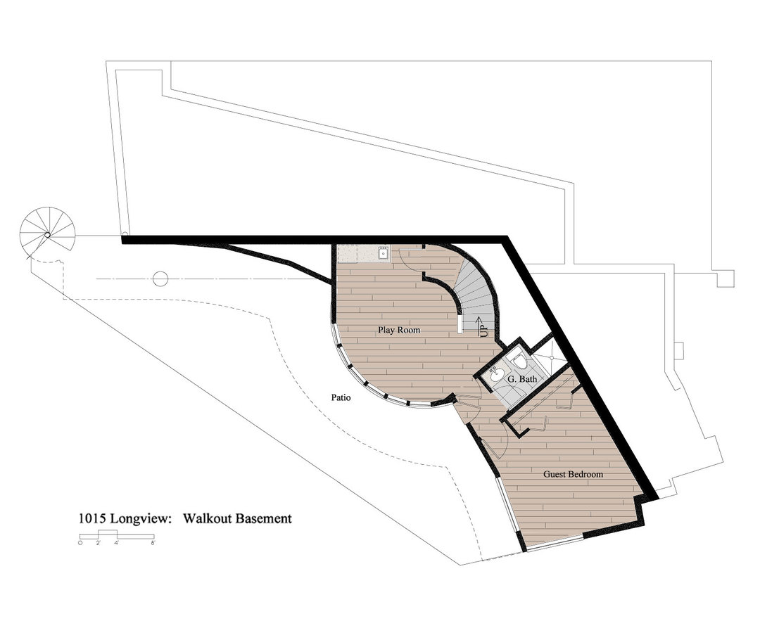
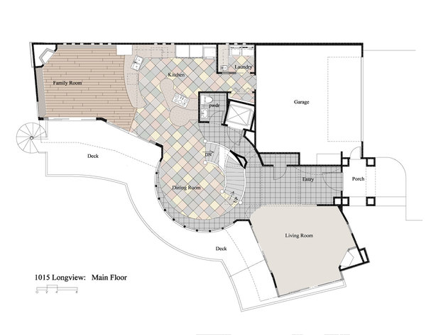
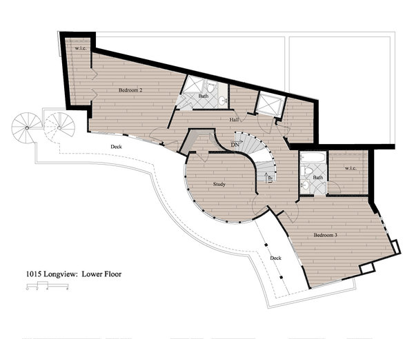
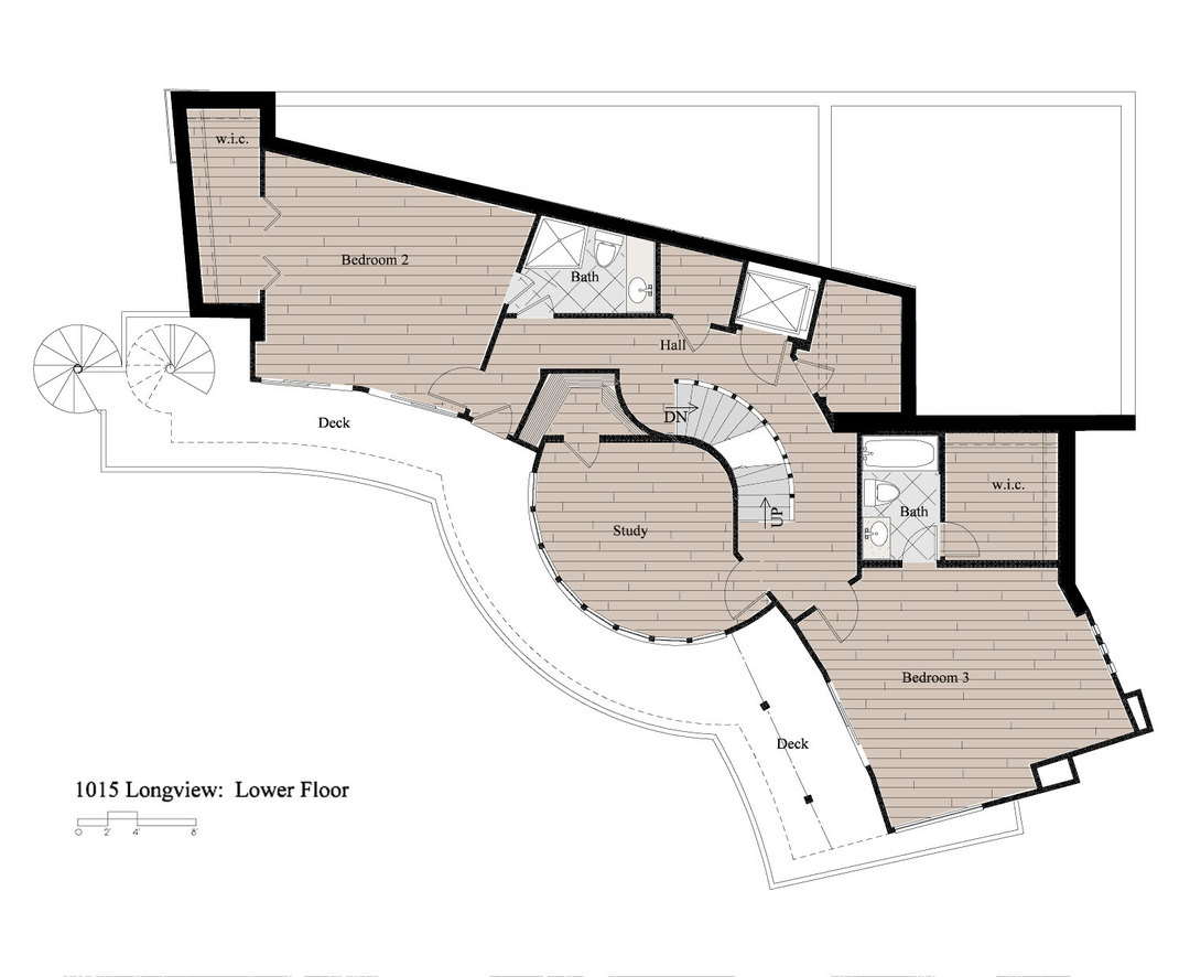
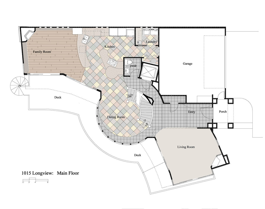
Pismo Beach House

Hillside home built on lot deemed unbuildable by the city since the neighborhood was laid out in the mid 1900’s. The house was featured in Dream Homes of Coastal California.